中古一戸建て 名古屋市緑区鏡田
所在地
名古屋市緑区鏡田
3,780万円
24.23坪
2LDK+S
物件概要
- 交通
-
地下鉄桜通線 徳重駅 まで 徒歩22分
- 接道状況
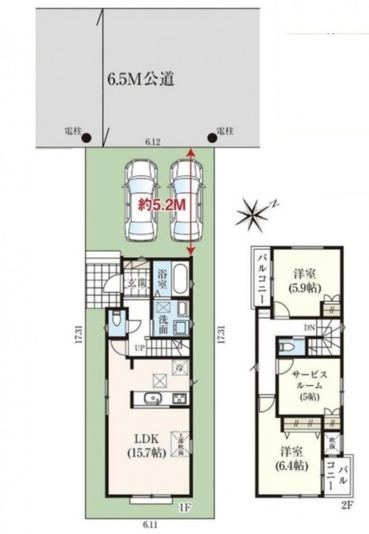
- 北西側 公道6.5m 間口約6.12m
- 土地面積
- 公簿 105.90㎡ (32.03坪)
- 建物面積
- 80.11㎡ (24.23坪)
- 築年数
-
2024年
(令和6)
4月
築1年 - 建ぺい率
- 40%
- 容積率
- 80%
- 土地権利
- 所有権
- 構造および階数
- 木造 軸組工法 造 地上2階建
- 小学校区
- 熊の前 ( 720m )
- 中学校区
- 神の倉 ( 1280m )
- 私道負担
- 地目
- 宅地
- 現況
- 空
- 引渡時期
- 即時
- 駐車場
- 有 2台
- 上水道
- 上水道
- 下水道
- 公共
- ガス
- 都市ガス
- 都市計画
- 市街化区域
- 用途地域
- 1種低層
- 設備・条件
- カウンターキッチン、食器洗浄乾燥機、浴室乾燥機、床暖房、複層ガラス、モニタ付インターホン、床下収納、トイレ2箇所、エアコン3基、ディンプルキー、火災報知器、シューズクローゼット
- 備考
-
■閑静な住宅街■風通良好
※リフォーム内容:鍵シリンダー交換・ハウスクリーニング・防蟻施工
※住宅省エネルギー性能証明書取得済
※建築確認完了検査済証 - 取引態様
- 仲介


